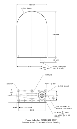
S65-5366-738